
083 CANO
Wiederverwendung auf dem CANVAS+ Areal
Für das CANVAS+ Areal in Offenburg haben wir die Wiederverwendung sämtlicher Bauteile geprüft, mögliche Nachnutzungsszenarien skizziert und den zerstörungsfreien selektiven Rückbau begleitet.
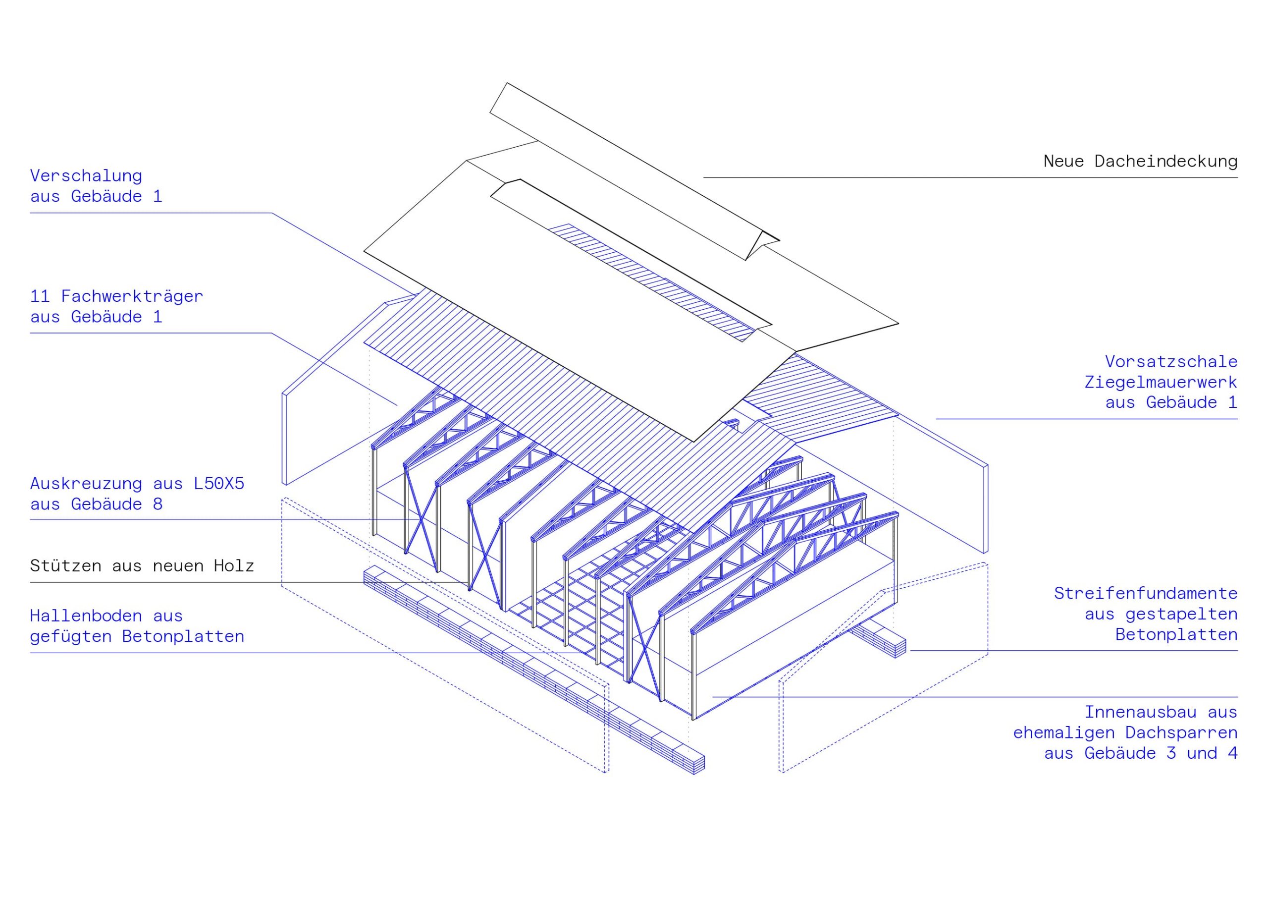
Im Rahmen der Analyse wurden für 9 Gebäude digitale Zwillinge erstellt und in einem Gesamtbauteilkatalog zusammengefasst. Jedes Bauteil wurde im digitalen Zwilling mit relevanten Informationen zur Fügung, zum Alter, zu eventuellen Beschädigungen, sowie zum Gehalt grauen Energie versehen. So konnte das Potential der urbanen Mine bewertet werden.
Um Aufzuzeigen welche Potentiale diese Materialien für das Bauen neuer Gebäude vor Ort wurde in drei kleinen Machbarkeitsstudien unterschiedliche Typologien auf Ihre Kompatibilität mit den vorgefundenen Materialien für Tragwerke und Fassade geprüft. So konnte aufgezeigt werden, dass zukünftige bedarf direkt vor Ort, mit den frei werdenden Baumaterialien bedient werden können.
Darauf folgende wurde in der Umsetzungsphase der zerstörungsfreie selektive Rückbau priorisierte Materialien ausgeschrieben und die Rückbauarbeiten vor Ort begleitet. Zusätzlich wurde ein Lager- und Logistikkonzept erarbeitet, welches es ermöglicht sämtliche Baumaterialien vor Ort zu lagern und auch den entsprechenden platz für die Rezertifizierung der Bauteile zur Verfügung zu stellen.
Mit den hier vorgefundenen Bauteilen wurde nicht nur vor Ort geplant. Sie dienten auch für einen erfolgreichen Wettbewerbsbeitrag in Heilbronn.
Leistungen
Analyse(Digitale Zwillinge, Bauteilkataloge, Graue Energie)
Strategie (Machbarkeitsstudie, Umsetzungsstrategie)
Umsetzung (LVs, Rückbauleitung, Lagerung)
Status
Laufend
Ort
Offenburg
Laufzeit
2025-
Bauherrschaft
Stadt Offenburg
In Zusammenarbeit mit
LMNTAL GmbH
Dominik Meier