
027 ANEM
Studie
Vom Ein- zum Mehrfamilienhaus
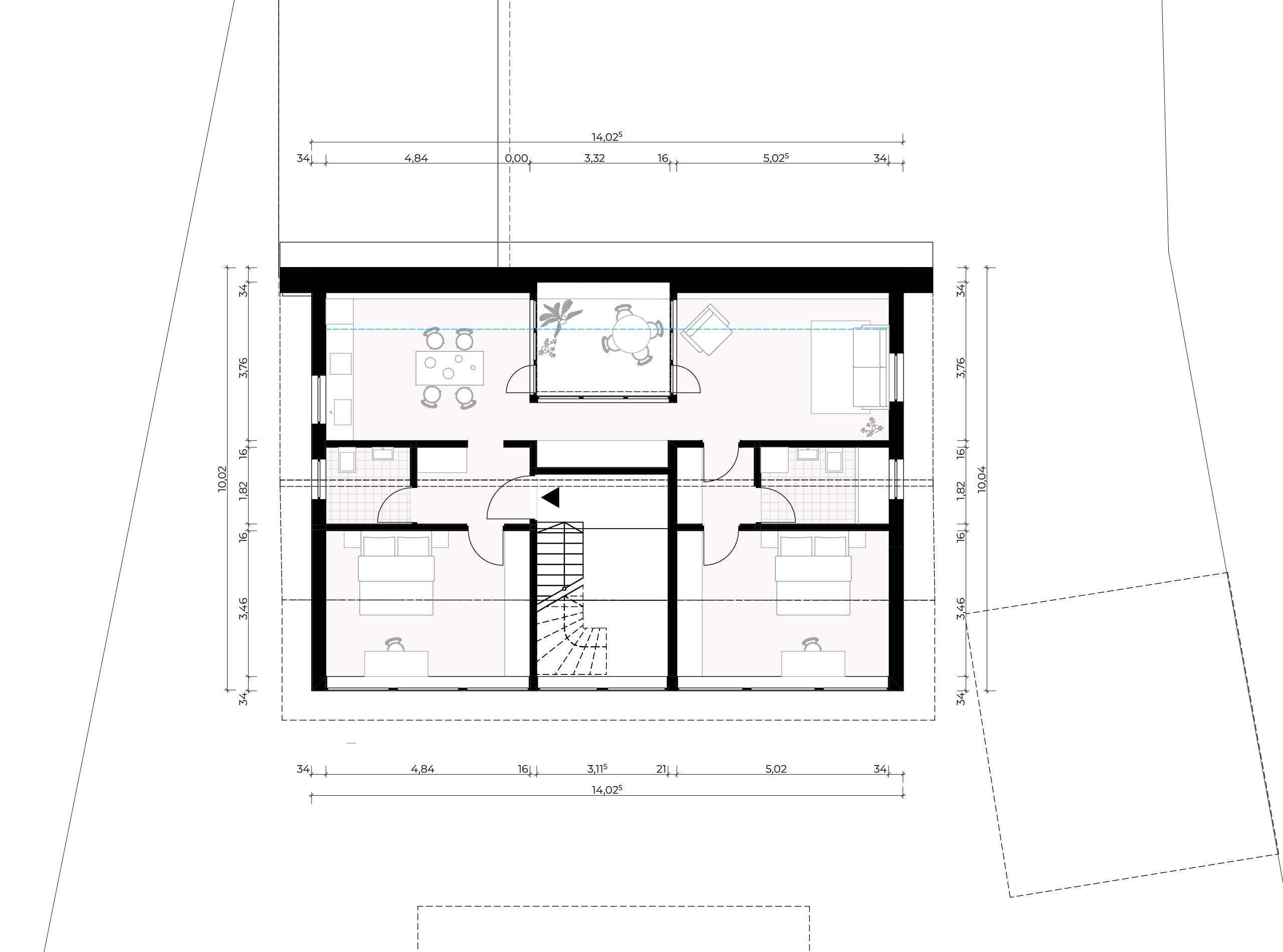
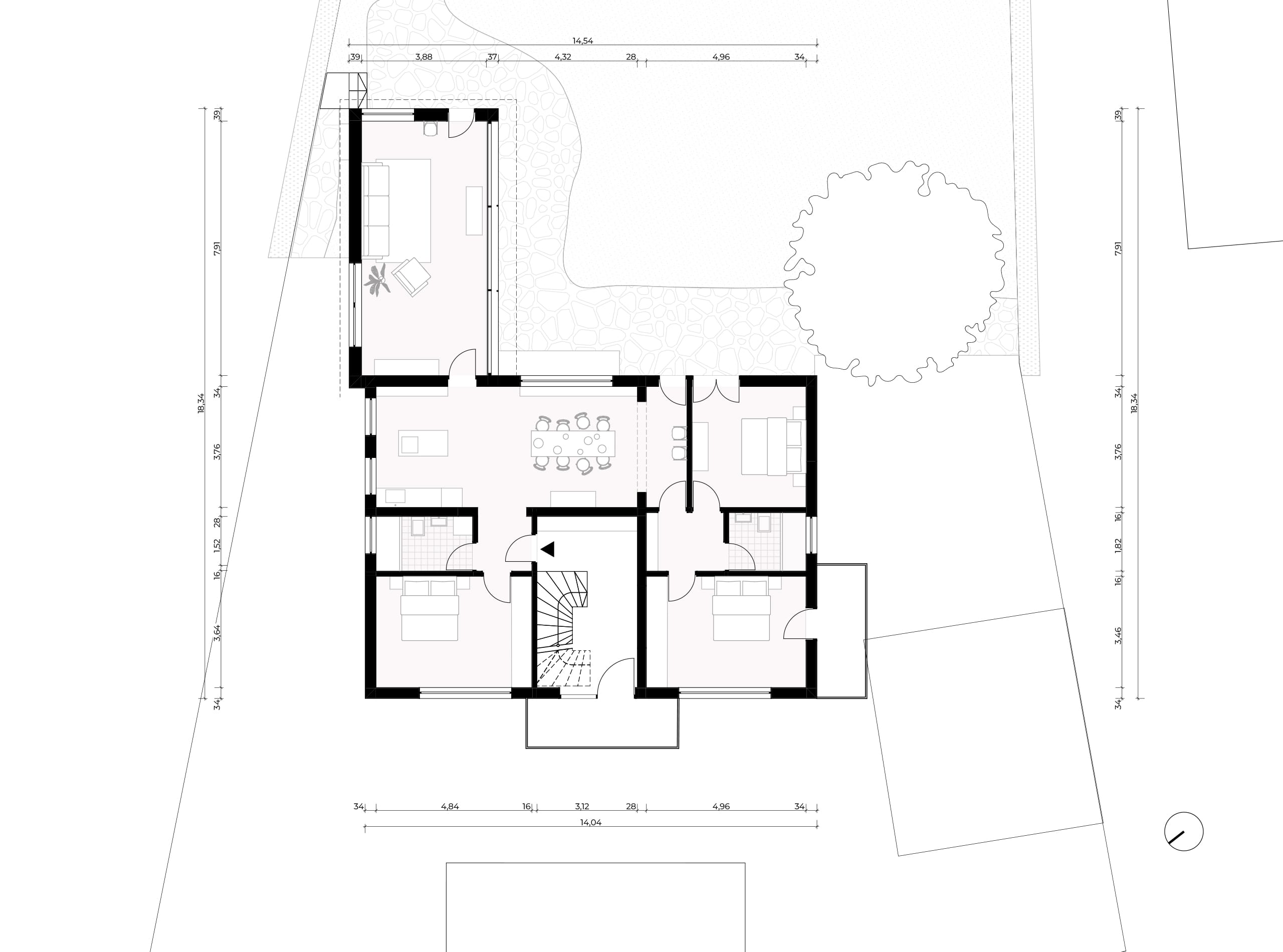
Am Rand eines Parks, in Hanglage und unter altem Baumbestand untersucht die Studie die Umnutzung eines großzügigen Einfamilienhauses mit Einliegerwohnung zu einem zeitgemäßen Mehrfamilienhaus. Leitmotiv ist der respektvolle Umgang mit dem Bestand: Die äußere Erscheinung bleibt weitgehend erhalten, größere Volumeneingriffe sind ausgeschlossen.
Die Topografie steuert die Erschließung: Eingang straßenseitig im Erdgeschoss, Gartenzugang rückseitig auf Höhe des 1. Obergeschosses. Das vorhandene Treppenhaus wird als effiziente, zentrale Erschließung weitergenutzt – ein entscheidender Beitrag zu Ressourcen- und Substanzerhalt.
Im Inneren sind die Eingriffe (außer am Dach) minimal: gezielte Öffnungen, technische Erneuerungen, flexible Grundrisse. Eine große Wohnung kann bei Bedarf in zwei Einheiten geteilt werden; mit Dachausbau sind perspektivisch auf allen Ebenen zwei Wohnungen möglich. So entsteht nachhaltige Verdichtung – maßvoll, anpassungsfähig und ortsverbunden.
Leistung
Architektur
Nutzung
Wohnen
Status
LP2
Ort
Freiburg
Jahr
2024
Bauherrschaft
Privat





